커튼월의 구성부재를 공장에서 조립하고 Unit화 하여 현장에 반입 설치하는 System,
모든 조립이 공장에서 이루어지므로 품질이 좋고 고층건물에 적합한 장점을 가지고 있다.

조립

글레이징

양생
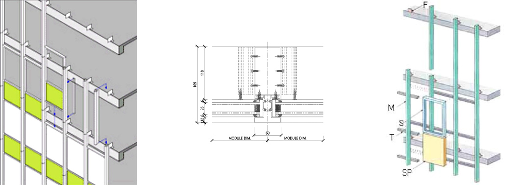
일반적인 공사에 적용되며 외벽의 구성 부재인 Mullion, Transom, Panel 그리고 Glazing 작업 등이
공사 현장에서 조립되는 System. 현장여건에 유연히 대처할 수 있고 운송이 편리함.
AL창호와 PVC창호의 장점만을 결합한 신개념 이중창입니다.
우수한 단열 성능으로 에너지 소비효율 1등급 구현이 가능합니다.
다양한 제작 타입이 가능하여, 상황에 따라 난간대 대체가 가능한 분할창과 Full창 구현이 가능 합니다.
고객이 요구하는 다양한 외부 칼라표현이 가능하여 품격있는 외부 Curtain wall lock 구현 가능합니다.
TILT기능과 TURN기능을 복합적으로 구현한 대표적 유럽식 창호입니다.
개폐방식에 따라 TILT & TURN, TILT ONLY, TURN ONLY가 가능합니다.
다양한 내외부 COLOR 적용으로 어떤 내·외장마감과도 조화되어 건물의 가치를 높여줍니다.
TILT기능과 TURN기능을 복합적으로 구현한 대표적 유럽식 창호입니다.
광폭 단열바와 Chamber type의 고단열 Polyamide 구조가 적용되어 단열성능이 뛰어납니다.
개폐방식에 따라 TILT & TURN, TILT ONLY, TURN ONLY가 가능합니다.
다양한 내외부 COLOR 적용으로 어떤 내·외부마감과도 조화되어 건물의 가치를 높여줍니다.
내부 인테리어에 간섭받지 않고 급속 환기가 가능한 OUTWARD TURN ONLY 시스템창입니다.
커튼월에 인서트 하지않고 단일 프레임으로 수직, 수평연창 구현이 가능합니다.
다양한 내외부 COLOR 적용으로 어떤 내·외장마감과도 조화되어 건물의 가치를 높여줍니다.
내부 인테리어에 간섭받지 않고 급속 환기가 가능한 OUTWARD TURN ONLY 시스템창입니다.
커튼월에 인서트 하지않고 단일 프레임으로 수직, 수평연창 구현이 가능합니다.
다양한 내외부 COLOR 적용으로 어떤 내·외장마감과도 조화되어 건물의 가치를 높여줍니다.
환기용도의 창으로 VENT의 하부가 외부로 돌출되어 개폐되는 시스템창입니다.
커튼월에 인서트 하지않고 단일 프레임으로 수직, 수평연창 구현이 가능합니다.
다양한 내외부 COLOR 적용으로 어떤 내·외장마감과도 조화되어 건물의 가치를 높여줍니다.
환기용도의 창으로 VENT의 하부가 외부로 돌출되며 개폐되는 시스템창입니다.
커튼월에 인서트 하지않고 단일 프레임으로 수직, 수평연창 구현이 가능합니다.
다양한 내외부 COLOR 적용으로 어떤 내·외장마감과도 조화되어 건물의 가치를 높여줍니다.
일반 미서기 창호와는 다른 세련되고 중후한 디자인으로 고급 인테리어와 어울립니다.
단열, 결로구조 그리고 단차 배수구조는 일반 미서기 창호와 다른 기술을 보여줍니다.
다양한 내외부 COLOR 적용으로 어떤 내·외부마감과도 조화되어 건물의 가치를 높여줍니다.
기존의 AL시스템창의 단열 성능을 크게 개선하여 주거용에서 사업용 건물까지 다양하게 사용 가능합니다.
개폐시 VENT가 LIFT UP되어 부드럽게 열리며, 잠금 상태에서는 VENT와RAIL이 밀착되어 기밀성을 확보합니다.
중후하고 고급스런 Design으로 고급 인테리어와 어울립니다.
다양한 내외부 COLOR적용으로 어떤 내·외장마감과도 조화되어 건물의 가치를 높여줍니다.
미서기 창의 편리함과 여닫이 창의 밀폐력이 결합된 Parellel Sliding 방식을 적용하여, 성능은 높이고 편리함은 더했습니다.
Slim한 프레임을 적용하여, 더욱 넓은 시야 확보가 가능합니다. 밀리언 폭 : 50mm(기존 LS제품 100mm)
기존 LS제품 대비 유리 면적 확대로 단열에 효과적입니다.
전용 자재를 통한 일체형 상부 Fix가 가능하여, 층고가 높은 현장에도 무리 없이 적용 가능한 제품입니다.
4면 6-Point Lock의 여닫이 방식으로 밀폐력이 우수합니다.
챔버 구조와 바폭 확대를 통해, 강한 강도가 요구되는지역에서도 안심하고 사용할 수 있습니다.
여닫이 방식과 2층 실링구조가 적용되어 수밀 성능이 우수 합니다.
전용 해안바 사용이 가능하여, 추가 담수공간 확보도 가능합니다.
주택 현관 및 사무실의 출입문으로 사용 가능한 고강도 시스템 도어입니다.
고품격의 외관 및 미려한 격자 적용을 통하여 다양한 디자인을 연출합니다.
제작 높이별 최적화된 특수 하드웨어 적용으로 창호높이 3000mm 제작 구현 및 반복 개폐에도 처짐을 최소화합니다.
다양한 내외부 COLOR 적용으로 어떤 내·외장마감과도 조화되어 건물의 가치를 높여줍니다.
시료를 사이에 두고 내외부 공간의 압력차에 의한 공기 투과의 정도를 파악하는 시험.
KS F 2293 규준과 ASTM E 283 규준에 의하여 시험이 진행됨.
외벽이 되는 창호 혹은 Curtain Wall이 물에 대한 저항성능을 얼마만큼 확보되고 있는지 알아보는 시험.
KS F 2293 규준과 ASTM ASTM E331, AAMA 501.1 규준에 의하여 시험이 진행됨
일정한 공기의 압력에 의해서 외부창과 도어, 천창, 커튼월의 구조적인 거동을 살펴보는 시험이다.
시험방법은 금속, 유리, 석재, 석재 구성품에 국한되지 않고, 커튼월의 모든 구성자재를 포함
KS F 2296 규준과 ASTM E 330 규준에 의하여 시험이 진행된다.
정해진 싸이클과 범위의 열순환 조건을 가한 후에 지정된 성능 조건을 유지할 수 있는지에 대해
외벽 구조의 능력을 평가하기 위해 수행되어짐.
ASMA 501.5 규준에 의하여 시험됨.
설치된 외벽이 지진에 의해 변위발생시 그 성능을 평가 위한 시험.
AAMA, 501.94규준에 의하여 진행됨.
건물의 외벽이 설치된 후, 설치된 외벽이 시방서에 명시된 성능 요구 조건을 충족시키는지 확인하기 위한 현장 시험.
ASTM E783, E1105규준에 의하여 진행됨.